株式会社丸イ山口商会 空き室情報2026.3.5
内覧希望の方は、平日10:00-17:00に011-221-3669までご連絡下さい。
平日にご連絡いただければ(アスカビル以外)土日祝祭日も対応可能です。
当日の内覧は対応が出来ない事もあります。ご了承ください。
事務所のみの募集です 募集中
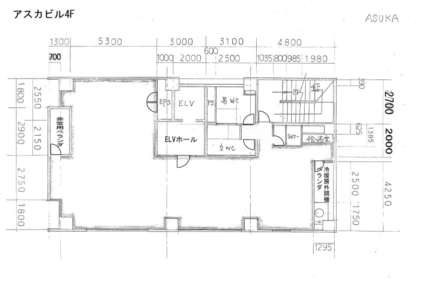
建物名称 アスカビル 4F
所 在 地 札幌市中央区南2条西1丁目8-2
仕 様 鉄筋鉄骨コンクリート造
契約面積㎡(坪) 153.412
46.489
占有面積㎡(坪) 137.742
41.74
坪単価(契約面積)
7,959円
賃 貸 料 総 額 407,000円
本 体(消費税) 370,000円
37,000
共 益 費 総 額 88,000円
本 体(消費税) 80,000円
8,000
敷 金 1,110,000円

株式会社丸イ山口商会
札幌市中央区南2条西1丁目7番地8 山口中央ビル7F
平日 10時~17時 TEL:011-221-3669
「西商ビルサービス 011-251-1725」
FAX:011-231-3385
平日17時以降 休日 テナント様専用 緊急連絡先
三条信和会館・恵会館・ススキノ会館「西商ビルサービス 011-251-1725」
山口中央ビル・アスカビル
「三菱ビルソリューションズ 011-222-1194」
札幌市内に5店舗、賃貸物件の管理等